Mon Garage en Ville Agence
Télécharger la fiche

VENTE LOT 8 DE PARKINGS - JUZIERS (78)

Parking

Juziers (78820)
37 000 € Référence 1518-33-JUZIERS-R

A propos de ce bien

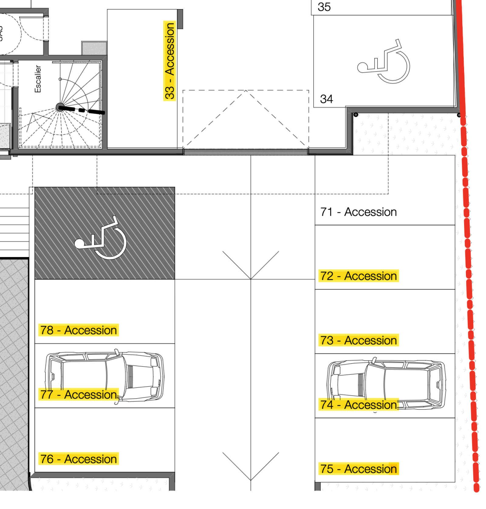
JUZIERS (78) - Nous vous proposons à la vente un lot de 7 parkings aériens (extérieurs) et 1 parking souterrain situés dans une résidence neuve et sécurisée. Emplacement idéal à 500m du centre-ville et à 400m de la Gare SNCF de Juziers, avec accès facile à l’A13 et lignes de bus à proximité. Accès pratique par rampe et portail automatique télécommandé. Rentabilité nette estimée à 7,4% sur la base d'une location à 60€ par mois pour le parking souterrain et 35€ par mois pour les parkings aériens. Frais de notaires réduits. Vente possible à l'unité ou en lots selon vos besoins, prix unitaire à partir de 4 000€. Taxe foncière à 734€ pour l'ensemble. Opportunité rare pour un investissement locatif sécurisé. N'hésitez pas à nous contacter pour plus d'informations. Cette annonce vous est proposée par mongaragenville, le spécialiste immobilier du stationnement.

Caractéristiques de ce bien

  • Surface 100 m²
  • ascenseur

Diagnostics énergétiques

Consommation énergétique
A B C D E F G
Emission de gaz à effet de serre
A B C D E F G
DPE ANCIENNE VERSION

Informations financières

Prix de vente 37 000 € Les honoraires d'agence seront intégralement à la charge du vendeur
Taxe foncière annuelle 734 €

Informations de copropriété

Copropriété Oui
Nombre de lots 32

Calcul des mensualités

* Champs obligatoires