Mon Garage en Ville Agence
Télécharger la fiche
Nouveauté

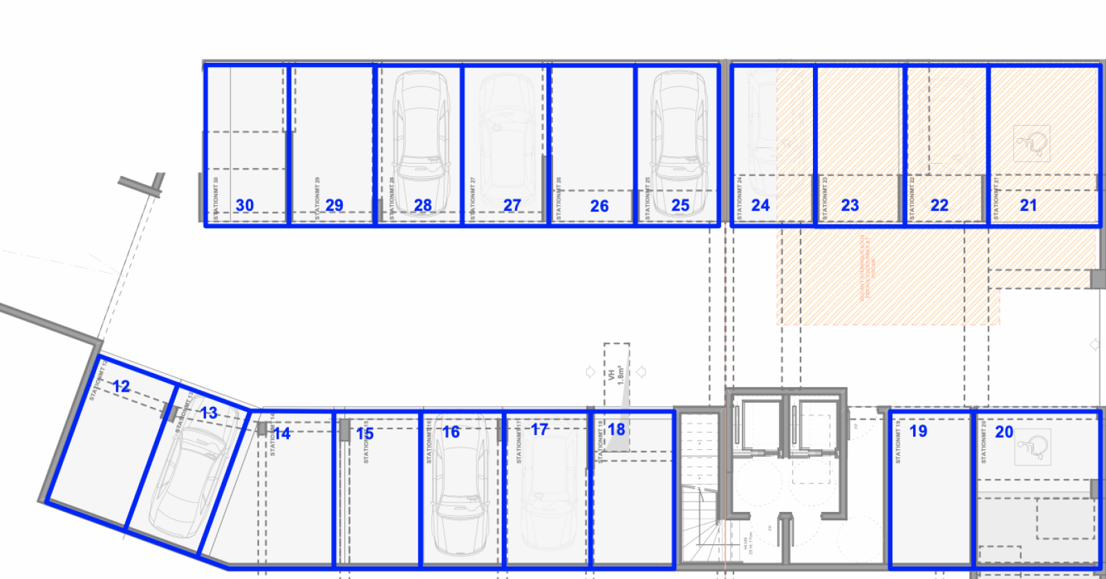
VENTE LOT 6 PARKINGS - SAINT-ÉTIENNE (42)

Parking

Saint-Étienne (42100)
66 000 € Référence 1635-12-STETIENNE-R

A propos de ce bien

SAINT-ÉTIENNE (42) - Nous vous proposons à la vente un lot de 6 parkings situés en 1er sous-sol au sein d'une résidence neuve et sécurisée. Accès par rampe et porte basculante motorisée à ouverture par télécommande. Emplacement idéal, à proximité immédiate de la Gare Saint-Etienne La Terrasse et du tramway lignes T1 et T3 (arrêt Quartier Grouchy). Situé à seulement 2,5km du centre-ville et à moins de 5 minutes de l'autoroute A72. Frais de notaire réduits. Achat à l'unité possible ou en lots selon vos besoins, prix unitaire à 11 000€TTC. Le montant des charges de copropriété est d'environ 7,50€ / mois / place.N'hésitez pas à nous contacter pour plus d'informations. Cette annonce vous est proposée par mongaragenville, le spécialiste immobilier du stationnement.

Caractéristiques de ce bien

  • Surface 84 m²
  • ascenseur

Diagnostics énergétiques

Consommation énergétique
A B C D E F G
Emission de gaz à effet de serre
A B C D E F G
DPE non concerné

Informations financières

Prix de vente 66 000 € Les honoraires d'agence seront intégralement à la charge du vendeur

Informations de copropriété

Copropriété Oui
Nombre de lots 14
Quote part annuelle des charges 540 €

Calcul des mensualités

* Champs obligatoires