Mon Garage en Ville Agence
Télécharger la fiche
Nouveauté

VENTE LOT 6 GARAGES, 1 PARKING SOUTERRAIN, 3 PARKINGS EXTÉRIEURS...

Garage 173 m²

Cormeilles-en-Parisis (95240)
173 000 € Référence 1670-8-CORMEILLES-R

A propos de ce bien

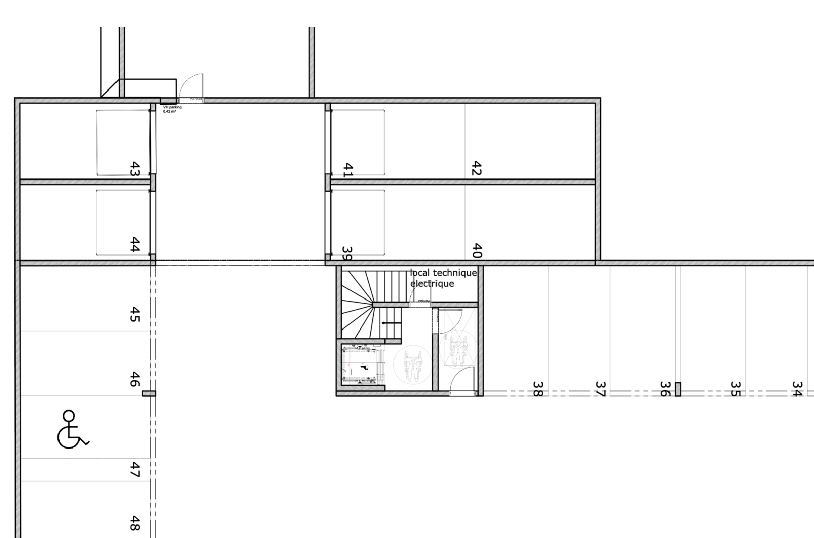
CORMEILLES-EN-PARISIS - Nous vous proposons à la vente un lot exceptionnel de 6 garages fermés (dont deux doubles en enfilade), 1 parking en 1er sous-sol et 3 parkings aériens (extérieurs), situés dans une résidence neuve et sécurisée, disponible fin 2025. Accès pratique par porte basculante motorisée et télécommande. Emplacement recherché dans le quartier Haut et Centre, à seulement 1 km du centre-ville. Lignes de bus à proximité immédiate, gare de Cormeilles-en-Parisis (Transilien J vers Paris) à 2 km et accès à l'A15 en 5 minutes en voiture. Idéal pour un investisseur, avec une rentabilité nette estimée à 5,5% sur la base d'une location à 60€/mois/parking aérien, 80€/mois/parking souterrain, 100€/mois/garage simple, 150€/mois/garage double. Achat possible à l'unité ou en lots à la demande. Opportunité rare offrant diversité et fort potentiel locatif. N'hésitez pas à nous contacter pour plus d'informations. Cette annonce vous est proposée par mongaragenville, le spécialiste immobilier du stationnement.

Caractéristiques de ce bien

  • ascenseur

Diagnostics énergétiques

Consommation énergétique
A B C D E F G
Emission de gaz à effet de serre
A B C D E F G
DPE non concerné

Informations financières

Prix de vente 173 000 € Les honoraires d'agence seront intégralement à la charge du vendeur

Informations de copropriété

Copropriété Oui
Nombre de lots 30

Calcul des mensualités

* Champs obligatoires